1. TOPTOP
  2. 物件検索
  3. ネバーランド伏見丹波橋
MANSION

物件詳細

ID:41787
お気に入りに登録しました! お気に入り

ネバーランド伏見丹波橋

4,280万円

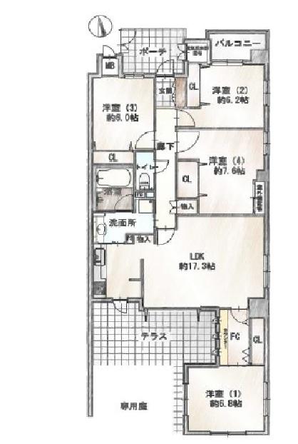
4LDK【101.56m2】

舞台町59-8

京阪本線 丹波橋駅 徒歩12 分

近鉄京都線 近鉄丹波橋駅 徒歩13 分

近鉄京都線 伏見駅 徒歩14 分

所在階
1階
築年月
2003年12月
  • ペット可
  • オートロック
  • 床暖房
  • TVドアホン
  • フローリング

販売物件情報(物件概要)

価格
4,280 万円
管理費
14,320円
修繕積立金
26,910円
専用庭
540 円
間取り
4LDK
間取り詳細
専有面積
101.56m2
バルコニー面積
3.64m2
専用庭面積
18m2
テラス面積
16.9m2
所在階
1階
部屋向き
入居/引渡時期
即時
現況
空家
設備・特長
バス・トイレ別,温水洗浄便座,洗濯機置き場,洗髪洗面化粧台 ,シャンプードレッサー,給湯,オートバス,追い焚き,浴室暖房乾燥機,IHコンロ,システムキッチン,食器洗浄乾燥機,キッチンに窓有,全室収納有,TVドアホン,バリアフリー,フローリング,バルコニー,専用ポーチ,宅配ボックス,オートロック,床暖房,インターネット,バイク置き場あり,駐輪場あり,南向き,オール電化
備考
※即入居可
※令和7年12月全面改装
※オール電化マンション
※価格変更4480万円→4380万円→4280万円
取引態様
仲介
情報更新日
2026/04/28 17:32
次回情報更新予定日
2026/06/28
マンション名
ネバーランド伏見丹波橋
所在地
伏見区舞台町59-8
交通
京阪本線 丹波橋駅 徒歩12 分
近鉄京都線 近鉄丹波橋駅 徒歩13 分
近鉄京都線 伏見駅 徒歩14 分
小学校区
伏見住吉
中学校区
伏見
建物構造
RC(鉄筋コンクリート)
建物階建
7階
築年月
2003年12月
総戸数
50戸
施工
㈱鍛冶田工務店
事業主
㈱日本エスコン
管理組合
管理形態
全部委託
管理人
日勤
管理会社
㈱カシワバラ・デイズ
その他設備
(棟共通)
オートロック,床暖房,TVドアホン,フローリング,エレベーター
備考(棟)
※ペット飼育可(管理規約アリ)
※オール電化マンション
※フレスコ丹波橋店(徒歩5分)ハッピーテラダ伏見店(徒歩8分)
※住吉児童公園(徒歩10分)

※物件概要は弊社調査時点での情報ですので、情報が古くなって いる可能性がございます。ご了承下さい。

MAP
所在地
LOAN SIMULATION
ローンシミュレーション
RECOMMEND
お近くの物件
  • 物件画像
    NEW

    京阪宇治線 桃山南口駅 徒歩6 分

    桃山ガーデンハイツ

    桃山町伊賀63-2

    3LDK 【80.6m2】

    1,890万円

  • 物件画像
    NEW

    京阪本線 藤森駅 徒歩1 分

    ローズマンション藤の森

    深草堀田町10-1

    3LDK 【78.96m2】

    2,280万円

  • 物件画像
    NEW

    京都地下鉄東西線 六地蔵駅 徒歩3 分

    プレサンスレジェンド六地蔵

    桃山町西尾37番地

    3SLDK 【64.82m2】

    3,980万円

  • 物件画像
    NEW

    京阪本線 藤森駅 徒歩8 分

    ルネ墨染2番館

    深草関屋敷町28番地2

    3LDK 【68.09m2】

    2,990万円

  • 物件画像
    NEW

    京阪本線 伏見稲荷駅 徒歩7 分

    コトーハイツ伏見稲荷A棟

    深草西川原町36-1

    3LDK 【65.67m2】

    2,199万円

  • 物件画像

    京都市営烏丸線 くいな橋駅 徒歩7 分

    深草西浦住宅

    深草西浦町2丁目2-1

    3LDK 【66.66m2】

    2,490万円

  • 物件画像
    NEW

    京阪本線 藤森駅 徒歩8 分

    ルネ墨染2番館

    深草関屋敷町28番地2

    2SLDK 【68.09m2】

    2,280万円

  • 物件画像
    価格DOWN

    近鉄京都線 近鉄丹波橋駅 徒歩2 分

    シャトー桃山

    桃山筒井伊賀東町47-3

    2DK 【42.2m2】

    980万円

  • 物件画像
    NEW

    京阪本線 中書島駅 徒歩5 分

    藤和伏見コープ

    東柳町539

    3LDK 【81.58m2】

    2,880万円

  • 物件画像
    NEW

    京阪本線 伏見桃山駅 徒歩6 分

    パークテラス桃山

    東組町698-1

    2LDK 【75.3m2】

    4,180万円

up

ようこそ!センチュリー21シティライフへ

こんにちは!様

センチュリー21 シティライフ

× 閉じる