1. TOPTOP
  2. 物件検索
  3. サンマンションドゥーシェ室町冷泉町
MANSION

物件詳細

ID:41707
お気に入りに登録しました! お気に入り

サンマンションドゥーシェ室町冷泉町

20,990万円

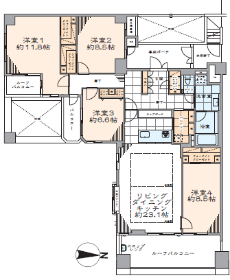
4LDK【141.55m2】

室町通二条上る冷泉町58番地

京都市営烏丸線 丸太町駅 徒歩4 分

京都市営烏丸線 烏丸御池駅 徒歩6 分

京都地下鉄東西線 烏丸御池駅 徒歩6 分

所在階
7階
築年月
2003年2月
  • ペット可
  • オートロック
  • 宅配ボックス
  • 床暖房
  • TVドアホン
  • フローリング

販売物件情報(物件概要)

価格
20,990 万円
管理費
19,800円
修繕積立金
23,360円
ルーフバルコニー
800 円
間取り
4LDK
専有面積
141.55m2
バルコニー面積
4.53m2
所在階
7階
部屋向き
入居/引渡時期
即時
現況
空家
設備・特長
バス・トイレ別,温水洗浄便座,洗濯機置き場,洗髪洗面化粧台 ,給湯,オートバス,浴室暖房乾燥機,ガスコンロ,システムキッチン,全室収納有,TVドアホン,フローリング,バルコニー,ルーフバルコニー,専用ポーチ,宅配ボックス,オートロック,床暖房,インターネット,駐輪場あり,角部屋,南向き,上層階,最上階
備考
※即入居可
※最上階・東南角部屋
※南向きバルコニー
※東向きルーフバルコニー付き
※眺望・陽当・通風良好
※令和8年3月全面改装
※価格変更21990万円→20990万円
取引態様
仲介
情報更新日
2026/04/20 13:03
次回情報更新予定日
2026/06/20
マンション名
サンマンションドゥーシェ室町冷泉町
所在地
中京区室町通二条上る冷泉町58番地
交通
京都市営烏丸線 丸太町駅 徒歩4 分
京都市営烏丸線 烏丸御池駅 徒歩6 分
京都地下鉄東西線 烏丸御池駅 徒歩6 分
小学校区
御所南
中学校区
京都御池
建物構造
RC(鉄筋コンクリート)
建物階建
7階
築年月
2003年2月
総戸数
37戸
施工
矢作建設工業㈱
事業主
三交不動産㈱
管理組合
管理形態
全部委託
管理人
日勤
管理会社
㈱東急コミュニティー
その他設備
(棟共通)
オートロック,宅配ボックス,床暖房,TVドアホン,フローリング,エレベーター
備考(棟)
※ペット飼育可(管理規約アリ)
※フレスコ御池新町店(徒歩6分)
※夷川公園(徒歩5分)

※物件概要は弊社調査時点での情報ですので、情報が古くなって いる可能性がございます。ご了承下さい。

MAP
所在地
LOAN SIMULATION
ローンシミュレーション
RECOMMEND
お近くの物件
  • 物件画像
    価格DOWN

    京都地下鉄東西線 二条城前駅 徒歩3 分

    メイゾン御池

    姉小路通堀川東入る鍛治町190

    2LDK 【88.79m2】

    4,780万円

  • 会員様専用物件 会員登録はコチラから
    会員様のみ閲覧できます
    会員様専用物件

    会員様のみ閲覧できます

    会員様のみ閲覧できます

    会員様のみ閲覧できます

    1DK

    1,900万円

  • 会員様専用物件 会員登録はコチラから
    会員様のみ閲覧できます
    会員様専用物件

    会員様のみ閲覧できます

    会員様のみ閲覧できます

    会員様のみ閲覧できます

    3LDK

    3,200万円

  • 物件画像

    阪急京都本線 西院駅 徒歩8 分

    コスモフォーラム四条

    壬生森前町10番地

    1LDK 【42.23m2】

    1,980万円

  • 物件画像
    NEW

    阪急京都本線 大宮駅 徒歩1 分

    四条大宮グランドコーポ

    四条通大宮西入る錦大宮町115番地5

    2LDK 【66m2】

    2,750万円

  • 会員様専用物件 会員登録はコチラから
    会員様のみ閲覧できます
    会員様専用物件

    会員様のみ閲覧できます

    会員様のみ閲覧できます

    会員様のみ閲覧できます

    2LDK

    3,750万円

  • 会員様専用物件 会員登録はコチラから
    会員様のみ閲覧できます
    会員様専用物件

    会員様のみ閲覧できます

    会員様のみ閲覧できます

    会員様のみ閲覧できます

    2LDK

    6,580万円

  • 会員様専用物件 会員登録はコチラから
    会員様のみ閲覧できます
    会員様専用物件

    会員様のみ閲覧できます

    会員様のみ閲覧できます

    会員様のみ閲覧できます

    1DK

    980万円

  • 会員様専用物件 会員登録はコチラから
    会員様のみ閲覧できます
    会員様専用物件

    会員様のみ閲覧できます

    会員様のみ閲覧できます

    会員様のみ閲覧できます

    1LDK

    10,980万円

  • 会員様専用物件 会員登録はコチラから
    会員様のみ閲覧できます
    会員様専用物件

    会員様のみ閲覧できます

    会員様のみ閲覧できます

    会員様のみ閲覧できます

    1K

    1,580万円

up

ようこそ!センチュリー21シティライフへ

こんにちは!様

センチュリー21 シティライフ

× 閉じる